This website uses cookies for analyzing traffic and improving user experience through Google Analytics. These cookies help us gather information about how you use our site. Your data is anonymized and is not used to identify users. Do you agree to the use of analytical cookies?
They say 'A picture is worth a thousand words' — and it's true, though not because of words, but because of drawn elements.
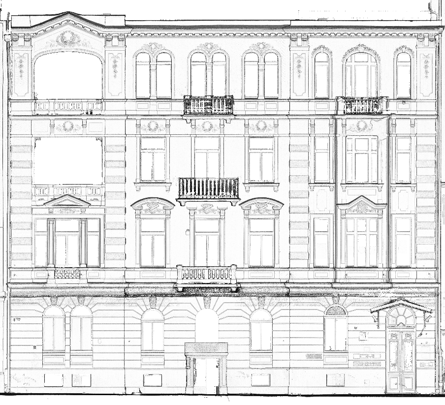
Points from the point cloud projected onto the appropriate view plane create an accurate, metric representation of the object.
When we scan for orthophotos, we capture even small details, damages, scratches, and more.
Of course, proper scanning is not everything. We have developed our own software for generating orthophotos,
which converts each point from the point cloud into an orthophoto pixel.
Additionally, the software includes filters that correct erroneous points, fill in missing pixels, and finally, adjust colors.